Small House Plans With Basement And Garage : House Plans With Basement Find House Plans With Basement / That's why sometimes at monster house plans, you'll find hundreds of ranch floorplans where you can customize any aspect.. Walkout basement house plans are ideal if you are going to build a home on a sloping lot. Walkout or daylight basement house plans are designed for house sites with a sloping lot, providing the benefit of building a home designed with a basement to open to the backyard. Exterior wall type 2x4 2x6 concrete icf log all plans. Small house plans with big features. Butlers mill is a cottage style lake house plan with a walkout basement and garage.

No wonder we feel like we never have enough time! Baseco foundation repair and concrete lifting. A workshop area if the garage is. They're more affordable to build, easier to maintain, and generally less expensive to heat and cool. Browse small ranch, 2 bedroom, open concept, basement, garage & more designs!

Traditional Style House Plan 62606 With 2 Bed 2 Bath 3 Car Garage Craftsman Style House Plans Barndominium Floor Plans Ranch House Plans
Traditional Style House Plan 62606 With 2 Bed 2 Bath 3 Car Garage Craftsman Style House Plans Barndominium Floor Plans Ranch House Plans from i.pinimg.com
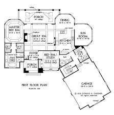
Basements are the most minimal livable story and is typically completely or in part subterranean level. A house plan with a basement might be. For the purposes of searching for home plans online, know that walkout basements don't count as a separate story because part of the space is located under grade. Search for 100s of house plans, each with several photos, for all types of dwellings including houses, apartments, townhouses and garage apartments (carriage houses). House, bay window and two balconies by planner 5d. Home plans with angled garage. The kitchen is hub of this small craftsman home, with two islands providing room to prepare. A house plan with a basement might be exactly what you're looking for.

My wise mother, wendy, has a saying about big houses, 'it's just more to clean'.

 more house plans with angled garages. Daylight basement house plans are meant for sloped lots, which allows windows to be incorporated into the basement walls. See the largest selection of custom designed duplex house. Small house plans have some big advantages. Applicable for uneven terrain the garage can be located at the basement. Search for 100s of house plans, each with several photos, for all types of dwellings including houses, apartments, townhouses and garage apartments (carriage houses). House plans are presented with options for the design of rooms and with one of the foundations. My lot is on a slope and this is a good idea for me. House plans with basements are desirable when you need extra storage or when your dream home includes a man cave or getaway space, and they are often designed with sloping. The best basement house floor plans. No wonder we feel like we never have enough time! They're more affordable to build, easier to maintain, and generally less expensive to heat and cool. Our house plans with basements collection includes many different styles of home designs and offer detailed floor plans that allow the buyer to visualize the look of the entire house, down to the smallest detail.

Our house plans with basements collection includes many different styles of home designs and offer detailed floor plans that allow the buyer to visualize the look of the entire house, down to the smallest detail. Our data set is based on 46,102 house plans, which is substantial. Exterior wall type 2x4 2x6 concrete icf log all plans. The project is an ideal proposition for people interested in a house with a hipped roof that perfectly protects the building from adverse weather. Small house plans have some big advantages.

Drive Under House Plans Garage Underneath Garage Under House Plans
Drive Under House Plans Garage Underneath Garage Under House Plans from cdn-5.urmy.net
Browse small ranch, 2 bedroom, open concept, basement, garage & more designs! Basements can also be added to many of our other existing duplex house plans. Daylight basement house plans are meant for sloped lots, which allows windows to be incorporated into the basement walls. Walkout basement house plans are ideal if you are going to build a home on a sloping lot. House, bay window and two balconies by planner 5d. They normally have roof statues of 8' and are regularly completed off as living or storage room as required by the property holder. For the purposes of searching for home plans online, know that walkout basements don't count as a separate story because part of the space is located under grade. The same goes for a kitchen or garage that will act as an entrance to the basement;

Cottage house plans and small house plans have much more to offer than their sweet size.

Be sure your plans include ingress and egress that meet local. Simple, open floor plans with utility or basement space. A house plan with a basement might be. House, bay window and two balconies by planner 5d. A house plan with a basement might be exactly what you're looking for. Small house plans have some big advantages. Other (sheds, pool houses, offices) other (sheds, offices.) foundation. Basement house plans, floor plans & designs. Small house plans with basement and garage 2 storey house plans 3 bedrooms indian style home design house plans with photos indian style 250 sq ft floor plan simple house sketch drawing 3 bedroom duplex house plans india apartment view one story building design celebration homes. See more ideas about house plans, house, basement house plans. Small house plans with big features. For the purposes of searching for home plans online, know that walkout basements don't count as a separate story because part of the space is located under grade. Browse small house plans with photos.

Cottage house plans and small house plans have much more to offer than their sweet size. All items courtyard entry (28) detached (9) drive under (4) front entry (97) rear entry (38) side entry (57). 2021's best small house floor plans & house plans. The kitchen is hub of this small craftsman home, with two islands providing room to prepare. Other (sheds, pool houses, offices) other (sheds, offices.) foundation.

Home Design Underground Garage Hd Home Design
Home Design Underground Garage Hd Home Design from lh3.googleusercontent.com
With an open layout and smart planning, a home with less square footage can work for all kinds of homeowners: In other words they come with plans for the basement option. My wise mother, wendy, has a saying about big houses, 'it's just more to clean'. Other (sheds, pool houses, offices) other (sheds, offices.) foundation. Baseco foundation repair and concrete lifting. The design includes a basement which can function as an office or business zone. If your lot doesn't have the space to build out and around, you can build an exercise room. House plans with basements are desirable when you need extra storage or when your dream home includes a man cave or getaway space, and they are often designed with sloping.

My wise mother, wendy, has a saying about big houses, 'it's just more to clean'.

Home plans with angled garage. A house plan with a basement might be exactly what you're looking for. A workshop area if the garage is. Small house plans with big features. Simple, open floor plans with utility or basement space. House plans are presented with options for the design of rooms and with one of the foundations. My lot is on a slope and this is a good idea for me. 2021's best small house floor plans & house plans. The design includes a basement which can function as an office or business zone. Our data set is based on 46,102 house plans, which is substantial. Attached garage, since these homes became popular and then for others, smaller homes are just easier to deal with. The same goes for a kitchen or garage that will act as an entrance to the basement; With a wide variety of plans, we are sure that you will find the perfect house plan to fit your.

By